ACO waste water lifting plant Muli-Nova DDP
Product benefits
- Tested in accordance with DIN EN 12050-1
- Freely selectable inlets
- Delivery heads of up to 30m possible
- 2 container sizes selectable (430/550l)
- Easy to maintain backflow preventer (patented)
Product information
- Scope
- Multi-dwelling units
- Office buildings
- Industrial buildings
- Behind separators up to NS22,5 - in connection with air bubble injection
- Salt-laden backwash water from ion exchanger softening plants
- Wastewater containing chlorine from indoor swimming pools (0.3 – 1.0 mg/l chlorine content)
- Polyethylene tank
- Bottom outlet/ connection manual membrane pump R 1 1/2’
- Inspection opening for easy maintenance, diameter: 250 mm
- Fastening set for buoyancy-proof anchorage
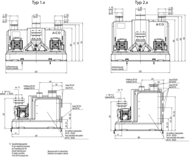
- DDP 1.x:
- Horizontal inlet sockets 1x DN100, 1x DN 150
- Vertical inlet sockets: 1x DN100, 3x DN150, 1x DN100 (vent pipes)
- DDP 2.x:
- Horizontal inlet sockets 3x DN150
- Vertical inlet sockets: 1x DN100, 2x DN150, 1x DN200, 1x DN100 (vent pipes)
- In addition, freely selectable sockets per hole saw + seal
- Discharge line connection
- Patented flap backflow preventer with lifting screw
- Drain valve for easier draining
- Special mounting adapter DN 80 for elastic connection of the discharge line with 108 - 114.3 mm outer pipe diameter (optional 88 - 93 mm)
- Connecting flange for stop valve DN 80
- 2 pumps
- 3-phase motor: 400 V, 50 Hz
- Degree of protection IP 68
- Blockage-free free flow impeller
- 10 m connecting cable
- Level switching
- Pneumatic level switching with 10 m control line
- Optional: Pressure transducer
- Optional: Air bubble injection (accessories) for measurement with pilot tube
- Tested in accordance with DIN EN 12050-1
- Approved delivery temperature up to 40 °C (short-term up to max. 65 °C)
- Control is not included in the scope of supply and must be ordered separately (see accessories)
| Type | Motor power | Key data | Usable volume | Total volume | Weight | Item number | ||||||
| P1 | P2 | Current consumption | Voltage | Rev count | Inlet height Z 1 | Inlet height Z 2 | Inlet height Z 3 | Top inlet | ||||
| [kW] | [kW] | [A] | [V] | [r/min] | [l] | [l] | [l] | [l] | [l] | [kg] | ||
| Muli-Nova DDP 1.1 | 1.7 | 1.5 | 3.7 | 400 | 1450 | 100 | 275 | 345 | 430 | 105 | 3016808 | |
| Muli-Nova DDP 1.2 | 3.5 | 3 | 6.6 | 400 | 2900 | 100 | 275 | 345 | 430 | 115 | 3016809 | |
| Muli-Nova DDP 1.3 | 6.3 | 5.5 | 11.2 | 400 | 2900 | 100 | 275 | 345 | 430 | 130 | 3016810 | |
| Muli-Nova DDP 2.1 | 1.7 | 1.5 | 3.7 | 400 | 1450 | 120 | 260 | 400 | 455 | 550 | 110 | 3016811 |
| Muli-Nova DDP 2.2 | 3.5 | 3 | 6.6 | 400 | 2900 | 120 | 260 | 400 | 455 | 550 | 120 | 3016812 |
| Muli-Nova DDP 2.3 | 6.3 | 5.5 | 11.2 | 400 | 2900 | 120 | 260 | 400 | 455 | 550 | 135 | 3016813 |
| Type | Delivery head | Delivery flow Q with overall delivery head H | Media temperature | ||||||||||||
|---|---|---|---|---|---|---|---|---|---|---|---|---|---|---|---|
| 2 m | 4 m | 6 m | 8 m | 10 m | 12 m | 14 m | 16 m | 18 m | 20 m | 22 m | 24 m | Normal | Maximum | ||
| [m] | [l/s] | [l/s] | [l/s] | [l/s] | [l/s] | [l/s] | [l/s] | [l/s] | [l/s] | [l/s] | [l/s] | [l/s] | [°C] | [°C] | |
| Muli-Nova DDP 1.1 | 2 – 10 | 14.4 | 12.1 | 9.2 | 5.3 | 0.4 | 40 | 60 | |||||||
| Muli-Nova DDP 1.2 | 2 – 24 | 19.4 | 18.4 | 16.7 | 15.0 | 13.2 | 11.7 | 10.2 | 8.6 | 6.8 | 5.0 | 3.1 | 0.6 | 40 | 60 |
| Muli-Nova DDP 1.3 | 2 – 31 | 22.3 | 22.1 | 21.9 | 21.0 | 19.9 | 19.0 | 17.8 | 16.4 | 15.2 | 13.9 | 12.2 | 10.8 | 40 | 60 |
| Muli-Nova DDP 2.1 | 2 – 10 | 14.4 | 12.1 | 9.2 | 5.3 | 0.4 | 40 | 60 | |||||||
| Muli-Nova DDP 2.2 | 2 – 24 | 19.4 | 18.4 | 16.7 | 15.0 | 13.2 | 11.7 | 10.2 | 8.6 | 6.8 | 5.0 | 3.1 | 0.6 | 40 | 60 |
| Muli-Nova DDP 2.3 | 2 – 31 | 22.3 | 22.1 | 21.9 | 21.0 | 19.9 | 19.0 | 17.8 | 16.4 | 15.2 | 13.9 | 12.2 | 10.8 | 40 | 60 |
- Instruction for use
- [Declaration of Performance DOP] BD-G1-3018
- Brochure Wastewater lifting plant and Pumping stations for trade and industry
- 3D-Model (dwg) - 3016808
- BIM Data (ifc) - 3016808
- Technical Drawing Dxf - 3016808
- Data sheet 3016808
- [Environmental Product Declaration (EPD)] Rotomoulded containers for drainage products
- Tender text (GAEB) - 0159.03.91: MULI-PE-S‑100 mono small lifting unit
- Tender text (DATANORM) - 0159.03.91: MULI-PE-S‑100 mono small lifting unit
- Instruction for use
- [Declaration of Performance DOP] BD-G1-3018
- Brochure Wastewater lifting plant and Pumping stations for trade and industry
- 3D-Model (dwg) - 3016809
- BIM Data (ifc) - 3016809
- Technical Drawing Dxf - 3016809
- Data sheet 3016809
- [Environmental Product Declaration (EPD)] Rotomoulded containers for drainage products
- Tender text (GAEB) - 0175.19.00: MULI-PE-S‑200 mono small lifting unit
- Tender text (DATANORM) - 0175.19.00: MULI-PE-S‑200 mono small lifting unit
- Instruction for use
- [Declaration of Performance DOP] BD-G1-3018
- Brochure Wastewater lifting plant and Pumping stations for trade and industry
- 3D-Model (dwg) - 3016810
- BIM Data (ifc) - 3016810
- Technical Drawing Dxf - 3016810
- Data sheet 3016810
- [Environmental Product Declaration (EPD)] Rotomoulded containers for drainage products
- Tender text (GAEB) - Muli-Nova DDP1.3: 3016810
- Tender text (DATANORM) - Muli-Nova DDP1.3: 3016810
- Instruction for use
- [Declaration of Performance DOP] BD-G1-3018
- Brochure Wastewater lifting plant and Pumping stations for trade and industry
- 3D-Model (dwg) - 3016811
- BIM Data (ifc) - 3016811
- Technical Drawing Dxf - 3016811
- Data sheet 3016811
- [Environmental Product Declaration (EPD)] Rotomoulded containers for drainage products
- Tender text (GAEB) - 0159.04.24: MULI-PE-S‑100 duo Kleinhebeablage für fäkalienhaltiges
- Tender text (DATANORM) - 0159.04.24: MULI-PE-S‑100 duo Kleinhebeablage für fäkalienhaltiges
- Instruction for use
- [Declaration of Performance DOP] BD-G1-3018
- Brochure Wastewater lifting plant and Pumping stations for trade and industry
- 3D-Model (dwg) - 3016812
- BIM Data (ifc) - 3016812
- Technical Drawing Dxf - 3016812
- Data sheet 3016812
- [Environmental Product Declaration (EPD)] Rotomoulded containers for drainage products
- Tender text (GAEB) - 0175.02.67: MULI-PE-S‑200 duo small lifting unit for faecal
- Tender text (DATANORM) - 0175.02.67: MULI-PE-S‑200 duo small lifting unit for faecal
- Instruction for use
- [Declaration of Performance DOP] BD-G1-3018
- Brochure Wastewater lifting plant and Pumping stations for trade and industry
- 3D-Model (dwg) - 3016813
- BIM Data (ifc) - 3016813
- Technical Drawing Dxf - 3016813
- Data sheet 3016813
- [Environmental Product Declaration (EPD)] Rotomoulded containers for drainage products
- Tender text (GAEB) - Muli-Nova DDP2.3: 3016813
- Tender text (DATANORM) - Muli-Nova DDP2.3: 3016813
| Type | Motor power | Key data | Usable volume | Total volume | Weight | Item number | ||||||
| P1 | P2 | Current consumption | Voltage | Rev count | Inlet height Z 1 | Inlet height Z 2 | Inlet height Z 3 | Top inlet | ||||
| [kW] | [kW] | [A] | [V] | [r/min] | [l] | [l] | [l] | [l] | [l] | [kg] | ||
| Muli-Nova DDP 1.1 | 1.7 | 1.5 | 3.7 | 400 | 1450 | 100 | 275 | 345 | 430 | 105 | 3016808 | |
| Muli-Nova DDP 1.2 | 3.5 | 3 | 6.6 | 400 | 2900 | 100 | 275 | 345 | 430 | 115 | 3016809 | |
| Muli-Nova DDP 1.3 | 6.3 | 5.5 | 11.2 | 400 | 2900 | 100 | 275 | 345 | 430 | 130 | 3016810 | |
| Muli-Nova DDP 2.1 | 1.7 | 1.5 | 3.7 | 400 | 1450 | 120 | 260 | 400 | 455 | 550 | 110 | 3016811 |
| Muli-Nova DDP 2.2 | 3.5 | 3 | 6.6 | 400 | 2900 | 120 | 260 | 400 | 455 | 550 | 120 | 3016812 |
| Muli-Nova DDP 2.3 | 6.3 | 5.5 | 11.2 | 400 | 2900 | 120 | 260 | 400 | 455 | 550 | 135 | 3016813 |
| Type | Delivery head | Delivery flow Q with overall delivery head H | Media temperature | ||||||||||||
|---|---|---|---|---|---|---|---|---|---|---|---|---|---|---|---|
| 2 m | 4 m | 6 m | 8 m | 10 m | 12 m | 14 m | 16 m | 18 m | 20 m | 22 m | 24 m | Normal | Maximum | ||
| [m] | [l/s] | [l/s] | [l/s] | [l/s] | [l/s] | [l/s] | [l/s] | [l/s] | [l/s] | [l/s] | [l/s] | [l/s] | [°C] | [°C] | |
| Muli-Nova DDP 1.1 | 2 – 10 | 14.4 | 12.1 | 9.2 | 5.3 | 0.4 | 40 | 60 | |||||||
| Muli-Nova DDP 1.2 | 2 – 24 | 19.4 | 18.4 | 16.7 | 15.0 | 13.2 | 11.7 | 10.2 | 8.6 | 6.8 | 5.0 | 3.1 | 0.6 | 40 | 60 |
| Muli-Nova DDP 1.3 | 2 – 31 | 22.3 | 22.1 | 21.9 | 21.0 | 19.9 | 19.0 | 17.8 | 16.4 | 15.2 | 13.9 | 12.2 | 10.8 | 40 | 60 |
| Muli-Nova DDP 2.1 | 2 – 10 | 14.4 | 12.1 | 9.2 | 5.3 | 0.4 | 40 | 60 | |||||||
| Muli-Nova DDP 2.2 | 2 – 24 | 19.4 | 18.4 | 16.7 | 15.0 | 13.2 | 11.7 | 10.2 | 8.6 | 6.8 | 5.0 | 3.1 | 0.6 | 40 | 60 |
| Muli-Nova DDP 2.3 | 2 – 31 | 22.3 | 22.1 | 21.9 | 21.0 | 19.9 | 19.0 | 17.8 | 16.4 | 15.2 | 13.9 | 12.2 | 10.8 | 40 | 60 |
- Instruction for use
- [Declaration of Performance DOP] BD-G1-3018
- Brochure Wastewater lifting plant and Pumping stations for trade and industry
- 3D-Model (dwg) - 3016808
- BIM Data (ifc) - 3016808
- Technical Drawing Dxf - 3016808
- Data sheet 3016808
- [Environmental Product Declaration (EPD)] Rotomoulded containers for drainage products
- Tender text (GAEB) - 0159.03.91: MULI-PE-S‑100 mono small lifting unit
- Tender text (DATANORM) - 0159.03.91: MULI-PE-S‑100 mono small lifting unit
- Instruction for use
- [Declaration of Performance DOP] BD-G1-3018
- Brochure Wastewater lifting plant and Pumping stations for trade and industry
- 3D-Model (dwg) - 3016809
- BIM Data (ifc) - 3016809
- Technical Drawing Dxf - 3016809
- Data sheet 3016809
- [Environmental Product Declaration (EPD)] Rotomoulded containers for drainage products
- Tender text (GAEB) - 0175.19.00: MULI-PE-S‑200 mono small lifting unit
- Tender text (DATANORM) - 0175.19.00: MULI-PE-S‑200 mono small lifting unit
- Instruction for use
- [Declaration of Performance DOP] BD-G1-3018
- Brochure Wastewater lifting plant and Pumping stations for trade and industry
- 3D-Model (dwg) - 3016810
- BIM Data (ifc) - 3016810
- Technical Drawing Dxf - 3016810
- Data sheet 3016810
- [Environmental Product Declaration (EPD)] Rotomoulded containers for drainage products
- Tender text (GAEB) - Muli-Nova DDP1.3: 3016810
- Tender text (DATANORM) - Muli-Nova DDP1.3: 3016810
- Instruction for use
- [Declaration of Performance DOP] BD-G1-3018
- Brochure Wastewater lifting plant and Pumping stations for trade and industry
- 3D-Model (dwg) - 3016811
- BIM Data (ifc) - 3016811
- Technical Drawing Dxf - 3016811
- Data sheet 3016811
- [Environmental Product Declaration (EPD)] Rotomoulded containers for drainage products
- Tender text (GAEB) - 0159.04.24: MULI-PE-S‑100 duo Kleinhebeablage für fäkalienhaltiges
- Tender text (DATANORM) - 0159.04.24: MULI-PE-S‑100 duo Kleinhebeablage für fäkalienhaltiges
- Instruction for use
- [Declaration of Performance DOP] BD-G1-3018
- Brochure Wastewater lifting plant and Pumping stations for trade and industry
- 3D-Model (dwg) - 3016812
- BIM Data (ifc) - 3016812
- Technical Drawing Dxf - 3016812
- Data sheet 3016812
- [Environmental Product Declaration (EPD)] Rotomoulded containers for drainage products
- Tender text (GAEB) - 0175.02.67: MULI-PE-S‑200 duo small lifting unit for faecal
- Tender text (DATANORM) - 0175.02.67: MULI-PE-S‑200 duo small lifting unit for faecal
- Instruction for use
- [Declaration of Performance DOP] BD-G1-3018
- Brochure Wastewater lifting plant and Pumping stations for trade and industry
- 3D-Model (dwg) - 3016813
- BIM Data (ifc) - 3016813
- Technical Drawing Dxf - 3016813
- Data sheet 3016813
- [Environmental Product Declaration (EPD)] Rotomoulded containers for drainage products
- Tender text (GAEB) - Muli-Nova DDP2.3: 3016813
- Tender text (DATANORM) - Muli-Nova DDP2.3: 3016813






