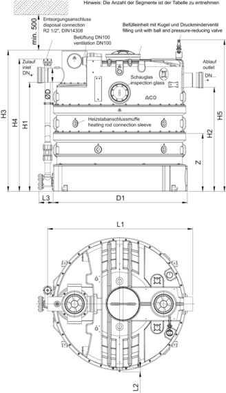
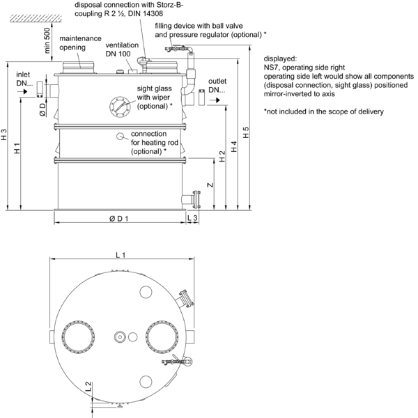
Grease Separator LipuJet-P-RD extension stage 1
Product benefits
- Easy to transport and assemble when bringing-in in individual segments
- Optimum insertion dimensions
- Easy handling thanks to lightweight individual segments (100 kg)
- Rotatable inlet fitting and plug-in foul air trap
- Integrated slant for easier disposal for optimized emptying
- Emptying and filling without odor nuisance
Product information
- Grease separator according to EN 1825 - Nominal Sizes (5,5-22.5)
- With integrated sludge trap
- Container made of polyethylene, in segment construction
- For indoor installation – frost-free
- Suction and drainage sump
- Odour-tight maintenance opening (clear width Ø450 mm)
- Odour-tight inspection opening through Inlet and outlet
- Central connection for direct suction with fixed coupling and blind coupling
- Inspection window with wiper (optional)
- Filling unit (components with DVGW and KIWA approvals) for manual refilling (optional):
- Free-flow valve
- Pressure reducer with dirt trap
- Odour trap
- Pipe connectors on the inlet and outlet with transition seal for pipe OD 200 mm (NS 15-22.5) / OD 160mm (NS 5.5-10)
- Execution right or left / following components are to be operated on the right or left to the central axis:
- Direct suction
- Inspection window (optional)
- Filling unit (optional)
- Declaration of Performance (DoP) No: BD-G1-1025
- Connections:
- Inlet and outlet OD 200mm (NS 15-22.5) / OD 160mm (NS 5.5-10)
- Vent DN100/OD110 mm
- Direct suction with fixed coupling Storz-B/2½" and blind coupling
- Water connection filling unit Rp ¾" (optional)
- Bottom outlet Rp1"
| Nominal size | Nominal width | Contents | Overall | Item number | |||
| Sludge trap | Grease store | Overall | Empty | Full | |||
| [l] | [l] | [l] | [kg] | [kg] | |||
| NS 15 | DN 200 | 1550 | 600 | 3130 | 330 | 3460 | 3515.51.00 |
| NS 20 | DN 200 | 2020 | 800 | 4070 | 350 | 4420 | 3520.51.00 |
| NS 22.5 | DN 200 | 2550 | 1000 | 5000 | 400 | 5400 | 3525.51.00 |
| Item number | Nominal size | Dimensions | ||||||||||
| L1 | L2 | L3 | H1 | H2 | H3 | H4 | H5 | D | D1 | Z/Anzahl Segmente | ||
| [mm] | [mm] | [mm] | [mm] | [mm] | [mm] | [mm] | [mm] | [mm] | [mm] | |||
| 3515.51.00 | NS 15 | 2500 | 65 | 210 | 1535 | 1465 | 1990 | 1870 | 2150 | 200 | 1890 | 4 |
| 3520.51.00 | NS 20 | 2500 | 65 | 210 | 1925 | 1855 | 2380 | 2260 | 2540 | 200 | 1890 | 4 |
| 3525.51.00 | NS 22.5 | 2500 | 65 | 210 | 2305 | 2235 | 2760 | 2640 | 2910 | 200 | 1890 | 5 |
Sampling pot DN 150
Suitable for
- Grease separator LipuJet-P/LipuSmart-P
- NS 5.5 – 10
- Starch separator FapuJet-P-OAP
- NS 2
Description
- For installation of horizontal pipes DN 150 to grease separator
- Round shape with
- Coupling socket seal (material SBR) on inlet and spigot on outflow
- Odour-proof maintenance opening DN 450
- Weight: 10.1 kg
Sampling pot DN 150
Suitable for
- Grease separator LipuJet-P/LipuSmart-P
- NS 5.5 – 10
- Starch separator FapuJet-P-OAP
- NS 2
Description
- For installation in vertical pipes DN 150 going to grease separator
- Round shape with
- Coupling socket seal (material SBR) on inlet and spigot on outflow
- Odour-proof maintenance opening DN 450
- Weight: 10.1 kg
Grease layer thickness measuring device
Suitable for
- LipuJet-P
- Oval NS 1 – 10
- Round NS 2 – 22,5
- LipuJet-S
- Oval NS 1 – 10
- Round NS 2 – 20
- LipuSmart-P
- Oval NS 1 – 10
Description
- For electronic measurement of layer of grease
- Suitable for liquid and/or congealing grease
- Measuring device with plug and used connecting cable, length: 3 m
- With two voltage-free changeover contacts to display full warning (80%) and advance warning of fill level (50%)
- With visual display of fill level
- With heated probe rod to increase reliability of operation
- Operating voltage: 230VAC/5 VA
- Max consumption approx. 12W
- Weight: 2.8 kg
Coarse trap DN 150
Suitable for
- Grease separator LipuJet-P/LipuSmart-P
- NS 5.5 – 10
- Starch separator FapuJet-P-OAP
- NS 2
Description
- For installation in vertical pipes DN 150 going to grease separator
- Round shape with
- Coupling socket seal (material SBR) on inlet and spigot on outflow
- Basket made from stainless steel, material grade 316 to retain coarse substances
- Odour-proof maintenance opening DN 450
- Weight: 12.6 kg
Coarse trap DN 200
Suitable for
- Grease separator LipuJet-P
- NS 15 – 22,5
Description
- For installation in vertical pipes DN 200 going to grease separator
- Round shape with
- Coupling socket seal (material SBR) on inlet and spigot on outflow
- Basket made from stainless steel, material grade 316 to retain coarse substances
- Odour-proof maintenance opening DN 450
- Weight: 9.9 kg
Stop valve
Suitable for
- Grease separators for free-standing installation
- Starch separator for free-standing installation
Description
- Made of cast iron
- Penstock plate, spindle made from stainless steel, material grade 304
- DN 150
- Length (L): 60 mm
- Spindle travel (H1 – H2): 478 – 639 mm
- Manual wheel diameter: 200 mm
- Weight: 29.4 kg
Connection box
Suitable for
- Grease separators
- LipuMax-P-D/DM/DA
- LipuJet-P-OD/RD/SD/OM/OMP/RM/RMP
- LipuJet-S-OD/RD/SD/OM/OMP/RM/RMP
- Stach seperators FapuMax-P-DA
- Oil separators Coalisator-P
- LipuLift-P-D/-DA/-DAP
Description
- For evacuation connection DN 80
- Made from stainless steel, material grade 304
- "On wall" version
- Door stop
- Choice of left or right
- Lockable door
- Dimensions (width x height x depth): 370 x 330 x 250 mm
- Weight: 10.4 kg
Connection box
Suitable for
- Grease separator
- Starch separators
- LipuLift-P-D/-DA/-DAP
Description
- For disposal connection, pendulum gas line (if necessary) and remote control
- From stainless steel, material grade 304
- "Surface mounted” version
- Glass beaded front
- Lockable door, left limit stop
- Dimensions W x H x D: 300 x 725 x 160 mm
- Weight: 10 kg
ACO Ozone Generator
Suitable for
- Grease separators, indoors
- Grease separators, outdoors
- Lifting stations
- Pumping stations
Description
- ACO Ozone minimizes odors that can arise from grease seperators, lifting plants and pumping stations
- Material: acid-resistant stainless steel
Consists:
- ACO Ozone - ozone generator
- Size (L x W x H): 270 x 100 x 85 mm
- Nominal voltage 230 V / 50 Hz
- Degree of protection IP20
- ACO Ozone pump - feed pump
- Size (L x W x H): 160 x 90 x 90 mm
- Integrated filter
- Nominal voltage 230 V / 50 Hz
- Degree of protection IP54
- ACO Ozone bracket - wall bracket
- Size (L x W x H): 295 x 110 x 90 mm
- Hoses
Operating Logbook
Suitable for
- Grease separator
- For underground installation
- For free-standing installation
Description
- Contents: Check-list and standard forms to document in-house monitoring, maintenance and disposal relating to the plant as required by DIN 4040-100
- Format: A4 with double filing rings
- Size: 60 pages
- Laid out to cover 5 years
- Weight: 0.3 kg
Sampling pot DN 150
Suitable for
- Grease separator LipuJet-P/LipuSmart-P
- NS 5.5 – 10
- Starch separator FapuJet-P-OAP
- NS 2
Description
- For installation of horizontal pipes DN 150 to grease separator
- Round shape with
- Coupling socket seal (material SBR) on inlet and spigot on outflow
- Odour-proof maintenance opening DN 450
- Weight: 10.1 kg
Sampling pot DN 150
Suitable for
- Grease separator LipuJet-P/LipuSmart-P
- NS 5.5 – 10
- Starch separator FapuJet-P-OAP
- NS 2
Description
- For installation in vertical pipes DN 150 going to grease separator
- Round shape with
- Coupling socket seal (material SBR) on inlet and spigot on outflow
- Odour-proof maintenance opening DN 450
- Weight: 10.1 kg
Grease layer thickness measuring device
Suitable for
- LipuJet-P
- Oval NS 1 – 10
- Round NS 2 – 22,5
- LipuJet-S
- Oval NS 1 – 10
- Round NS 2 – 20
- LipuSmart-P
- Oval NS 1 – 10
Description
- For electronic measurement of layer of grease
- Suitable for liquid and/or congealing grease
- Measuring device with plug and used connecting cable, length: 3 m
- With two voltage-free changeover contacts to display full warning (80%) and advance warning of fill level (50%)
- With visual display of fill level
- With heated probe rod to increase reliability of operation
- Operating voltage: 230VAC/5 VA
- Max consumption approx. 12W
- Weight: 2.8 kg
Coarse trap DN 150
Suitable for
- Grease separator LipuJet-P/LipuSmart-P
- NS 5.5 – 10
- Starch separator FapuJet-P-OAP
- NS 2
Description
- For installation in vertical pipes DN 150 going to grease separator
- Round shape with
- Coupling socket seal (material SBR) on inlet and spigot on outflow
- Basket made from stainless steel, material grade 316 to retain coarse substances
- Odour-proof maintenance opening DN 450
- Weight: 12.6 kg
Coarse trap DN 200
Suitable for
- Grease separator LipuJet-P
- NS 15 – 22,5
Description
- For installation in vertical pipes DN 200 going to grease separator
- Round shape with
- Coupling socket seal (material SBR) on inlet and spigot on outflow
- Basket made from stainless steel, material grade 316 to retain coarse substances
- Odour-proof maintenance opening DN 450
- Weight: 9.9 kg
Stop valve
Suitable for
- Grease separators for free-standing installation
- Starch separator for free-standing installation
Description
- Made of cast iron
- Penstock plate, spindle made from stainless steel, material grade 304
- DN 150
- Length (L): 60 mm
- Spindle travel (H1 – H2): 478 – 639 mm
- Manual wheel diameter: 200 mm
- Weight: 29.4 kg
Connection box
Suitable for
- Grease separators
- LipuMax-P-D/DM/DA
- LipuJet-P-OD/RD/SD/OM/OMP/RM/RMP
- LipuJet-S-OD/RD/SD/OM/OMP/RM/RMP
- Stach seperators FapuMax-P-DA
- Oil separators Coalisator-P
- LipuLift-P-D/-DA/-DAP
Description
- For evacuation connection DN 80
- Made from stainless steel, material grade 304
- "On wall" version
- Door stop
- Choice of left or right
- Lockable door
- Dimensions (width x height x depth): 370 x 330 x 250 mm
- Weight: 10.4 kg
Connection box
Suitable for
- Grease separator
- Starch separators
- LipuLift-P-D/-DA/-DAP
Description
- For disposal connection, pendulum gas line (if necessary) and remote control
- From stainless steel, material grade 304
- "Surface mounted” version
- Glass beaded front
- Lockable door, left limit stop
- Dimensions W x H x D: 300 x 725 x 160 mm
- Weight: 10 kg
ACO Ozone Generator
Suitable for
- Grease separators, indoors
- Grease separators, outdoors
- Lifting stations
- Pumping stations
Description
- ACO Ozone minimizes odors that can arise from grease seperators, lifting plants and pumping stations
- Material: acid-resistant stainless steel
Consists:
- ACO Ozone - ozone generator
- Size (L x W x H): 270 x 100 x 85 mm
- Nominal voltage 230 V / 50 Hz
- Degree of protection IP20
- ACO Ozone pump - feed pump
- Size (L x W x H): 160 x 90 x 90 mm
- Integrated filter
- Nominal voltage 230 V / 50 Hz
- Degree of protection IP54
- ACO Ozone bracket - wall bracket
- Size (L x W x H): 295 x 110 x 90 mm
- Hoses
Operating Logbook
Suitable for
- Grease separator
- For underground installation
- For free-standing installation
Description
- Contents: Check-list and standard forms to document in-house monitoring, maintenance and disposal relating to the plant as required by DIN 4040-100
- Format: A4 with double filing rings
- Size: 60 pages
- Laid out to cover 5 years
- Weight: 0.3 kg


























